
















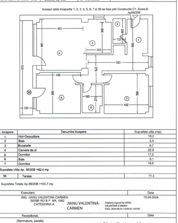
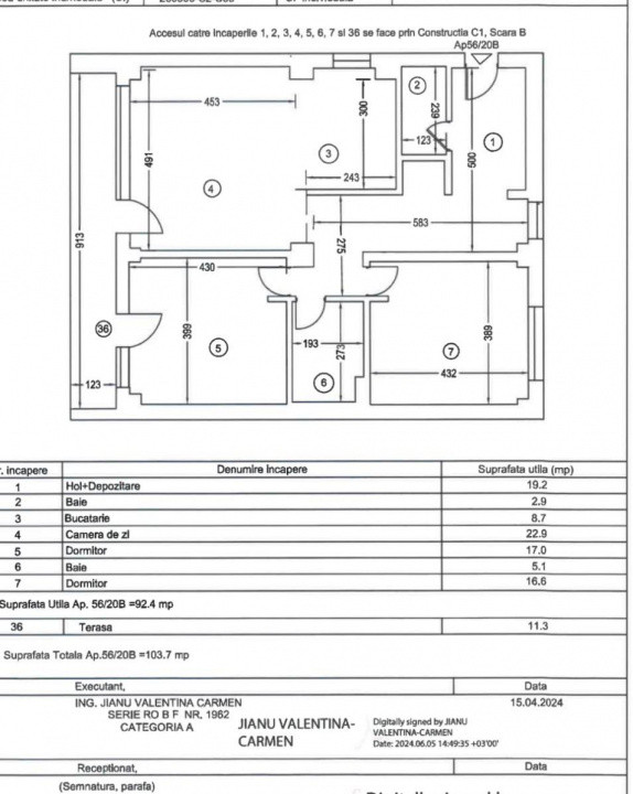
Haus Imobiliare va prezinta apartament modern cu 3 camere, având o suprafață utilă de 92,4 mp, la care se adaugă o terasă spațioasă de 11,3 mp. Locuința este situată la etajul 4 din 6, într-un bloc nou dotat cu lift.
Apartamentul dispune de centrală proprie și încălzire în pardoseală, oferind un confort ridicat pe tot parcursul anului. Se vinde complet mobilat și utilat, fiind pregătit pentru mutare imediată.
Proprietatea este amplasată în zona Dacia, o zonă bine conectată și apreciată, iar locul de parcare subteran este inclus în preț.
Pretul apartamentului est cu TVA inclus.
Pentru mai multe detalii sau programarea unei vizionări, nu ezitați să mă contactați.