




























Haus Imobiliare vă propune spre închiriere un spațiu comercial complet renovat, situat în zona centrală din Năvodari, pe strada Rândunelelor – o zonă cu acces excelent, trafic pietonal și rutier ridicat, aproape de instituții, magazine, farmacii și mijloace de transport. Poziția este ideală pentru orice activitate profesională care necesită vizibilitate și acces facil pentru clienți.
Spațiul are o intrare frumoasă, cu zonă verde amenajată (închiriată și întreținută), precum și scări și rampă pentru persoane cu dizabilități, oferind accesibilitate totală.
Interiorul este nou în proporție de 100%, fiind oferit spre închiriere pentru primul chiriaș după renovare. Toate instalațiile, finisajele și dotările sunt complet schimbate, ceea ce oferă condiții moderne și sigure pentru desfășurarea activității.
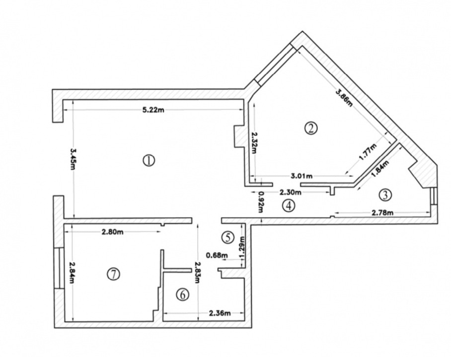
Suprafață utilă totală: 49 mp
3 încăperi distincte, luminoase, fiecare cu fereastră
2 grupuri sanitare complet noi
Zonă dedicată pentru amenajarea unei chicinete
Centrala proprie pe gaz – costuri reduse
Aer condiționat
Instalație electrică nouă
Instalație sanitară nouă
Gresie, uși și finisaje complet noi
Intrare amenajată cu spațiu verde
Scări + rampă pentru persoane cu dizabilități
Primul chiriaș după renovare
Disponibil imediat
Contract minim 12 luni (închiriere doar pe termen lung)
Ideal pentru
Cabinet medical, farmacie, laborator, birou notarial, sediu firmă, cabinet psihologic, salon de servicii, showroom mic, activități de consultanță sau alte servicii profesionale.